North House
High Performance Energy Producing Residential Prototype










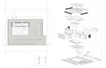
The North House is an 800sf proof of concept prototypical prefabricated solar powered home designed for northern climates (42°-55° latitude) whose goal is to advance approaches to responsive envelope design and challenge conventional assumptions regarding the design of domestic typologies for northern climates through the pairing of hybrid integrated active and passive envelope systems with interactive controls. In combining these technologies, the North House prototype delivers a net energy-producing dwelling that sponsors new relationships between occupants, their surrounding environment and building systems. The modular nature of the house and its component-based design and assembly allows for the base 800sf prototype to be easily expanded with additional bedrooms and/or a second storey. North House was designed to incorporate mass customization and prefabricated assembly technologies with the aim of providing a demonstration of alternative highly rationalized production techniques available to the housing industry. The project evolved as a collaboration between professional, academic and industry partners, and an inter-institutional team engaging faculty and graduate students from the University of Waterloo, Ryerson University, and Simon Fraser University. The house has received multiple awards and recognition for its technological and architectural innovations.
Typology | High Performance Energy Producing Residential Prototype |
Date | 2008-2010 |
Location | Washington DC, Cambridge ON |
scale | 800 sf prototype |
scope | Research plan includes advanced high performance building technologies and responsive envelope systems development, component-based manufacturing techniques, energy positive housing towards sustainable communities, prototype building development, entry into 2009 Solar Decathlon competition and post-occupancy testing. |
Team
Architects | RVTR Inc.: Kathy Velikov, OAA (Architect of record), Geoffrey Thün, Colin Ripley Zain AbuSeir, Matt Storus, Matt Peddie. |
Structural Engineers | Blackwell Bowick Partnership Ltd: David Bowick, Cory Zurell |
Faculty Team | Geoffrey Thün (Faculty Lead / Primary Investigator), Kathy Velikov, David Lieberman Dr. John Straube (Sustainability And Building Science), Dr. Michael Collins, (Solar Thermal), Philip Beesley, Donald McKay, Rick Haldenby, Dr. Alan Fung, Dr. Lyn Bartram (Interaction Design), Ron Wakkary, Dr. Rob Woodbury (Chair, Advisory Board) |
Graduate Student Architectural Team | Lauren Barhydt (Project Management and Engineering SYSTEMS Coordination), Chris Black (Architectural Design: Envelope), Chloe Doesburg (Architectural Design: Prefabrication Logics & Contract Administration), Maun Demchenko (Media and Public Relations), Natalie Jackson (Landscape Systems & Transportation Logistics), Jen Janzen (Interior Design), Bradley Paddock (Construction Logics & Prototyping), Matt Peddie, Allan Wilson (Ceiling Systems Development), Andrea Hunniford, Lindsey Nette, David Schellingerhoudt, Kevin Schorn, Sonya Storey-Fleming, Jamie Usas, Eric Bury, Wade Brown, Andrew Haydon, Hayley Isaacs, Chris Knight, Farid Noufailly |
Graduate Student Engineering Team | Sebastien Brideau (Mechanical), Brent Crowhurst (Electrical and Controls), Ivan Lee (Engineering Coordination and Building Science), Bart Lomanowski (Energy Modeling) Andrew Marston (Mechanical), Toktam Saied (Mechanical), Humphrey Tse (Mechanical), Fabio Almeida, Aya Dembo, Brittany Hanam, Raqib Omer Mian, Omar Siddiqui |
Interaction Design Student Team | Rob Mackenzie, Kevin Muise, Johnny Rodgers, Davis Marques, Kush Bubbar, Jin Fan, Yin He, Jenny Thai (SIAT) |
Responsive Façade Development | Philip Beesley Architect Inc., RVTR Inc. |
Controls Design | Chris Brandson (Vertech Solutions), Reid Blumell (Embedia Technologies) |
Mechanical | : Al Davies (Eco-Options Geosolar) Steve Davies (EcoLogix Heating Technologies) Gord Walsh (Slatus Air), Aaron Goldwater (Goldwater Solar Services) |
Electrical | : (Red Electric) Robin Sanders, Dan Pelkman, Nicolas Stroeder |
Plumbing | Laurie Johnson, Wladyslaw Iwaniec |
Kitchen Systems | (Bulthaup Canada), Antje Bulthaup, Stefan Sybydlo |
Logistics | Fabrication | Installation: MCM 2001 Inc. | Gregory Rybak, Sean Baldwin (Owners), Jacek Debski (Project Manager & Detail Development), Witek Jasinski (Crew Lead) Mikola Minzak, Luke Statkiewicz, Lukasz Szczepanek, Maks Matuszewski, Philip Lesniak, Adam Golaszewski, Richard Pelly, Zbigniew Gembora, Ryszard Goryl, Krzyzstof Plaza, Krzyzstof Banasek ,Pawel Noga, Jan Sawczak, Piotr Dabrowski, Oleg Izvekov (Dynamics Design) Danny Pietrangelo |
Photography | Geoffrey Thün, Terri Meyer Boake, Andrea Hunniford, Jim Tetro |
exhibitions
- Architecture of Necessity. Virserums Konsthall, Sweden, May 9 –Sept 19 2010
- Penser Tout Haut Faire L’Architecture / The Force is in the Mind. Montreal, Halifax and Graz, 2010-2011
- US Department of Energy Solar Decathlon. Washington D.C., Oct 2009
- rvtr: matters of concern. Cambridge Galleries at Riverside, Cambridge, ON, Oct 2008 - Jan 2009
- Young Architects Forum 2008: RESONANCE. The Architectural League, New York, May - July 2008
AWARDS | GRANTS
- RAIC Award of Excellence for Innovation in the Practice of Architecture, 2011
- Evergreen Awards, Eco-Structure Magazine: Special Jury Award, 2011
- Architect Magazine, R&D Award Program, Award of Excellence, 2010
- Ontario Association of Architects (OAA) Design Excellence Award, 2010
- 2009 US Department of Energy Solar Decathlon, Fourth Place